Displace | Replace | Emplace
Vidhya Pushpanathan + Yonatan Buchhandler
Intermediate 14 at the Architectural Association School of Architecture
2025-26
Intermediate 14 is interested in new hybrid forms of expression, identity, and practices of displaced communities. Those which have replaced the existing character of their current environment through blending elements of their original culture with that of their host society. It is a survival strategy and a creative response to living between cultures in search of emplacement.
We observe this in communities from Tooting, London to La Chappelle, Paris and by visiting local communities in Sri Lanka who are slowly being replaced by globally influenced micro-communities that have developed hybrid cultural rituals in search of a sense of belonging.
The year begins with creating an encyclopaedia of hybrid cultural rituals and social practices of displaced communities under the categories of circulation, domestication, and restriction. These are collected from a range of sources that are not limited to architectural origins or singular geographies. This was followed by a series of drawing and model making workshops to experiment with alternative methods of how to represent space, time, movement, symbolism, and social structures.
Finally, we reimagine existing architectural typologies by positioning ourselves on the fringe of society and establishing an alternate way of recognizing the world through social, economic and political exclusion. This is done by moving from the private space of the room and blurring the protective boundaries of the building through thresholds to redefine the transformational relationship that these social structures of duality have on the street and in the city. The testing ground for this are within the three points of Tooting, Brixton and Peckham in South London.
Our aim is to define new speculative worlds of architecture that break down the boundary between ‘ourselves’ and ‘the other’.
Atmospheres of Consumption by Oscar Wang
Atmospheres of Consumption by Oscar Wang
Atmospheres of Consumption by Oscar Wang
Ekasai by Qingyang Zeng
Ghost Festivals by Elaine Lai
Mass Consumerism of Wellness by Cecily Lu
Thresholds of Memory by Asu Sabuncuoglu
Third Spaces of the Diaspora by Anna Oba
Social Condensers of the Past by Melina Iacovou
Memberships of Friction by Dezire Esentepe
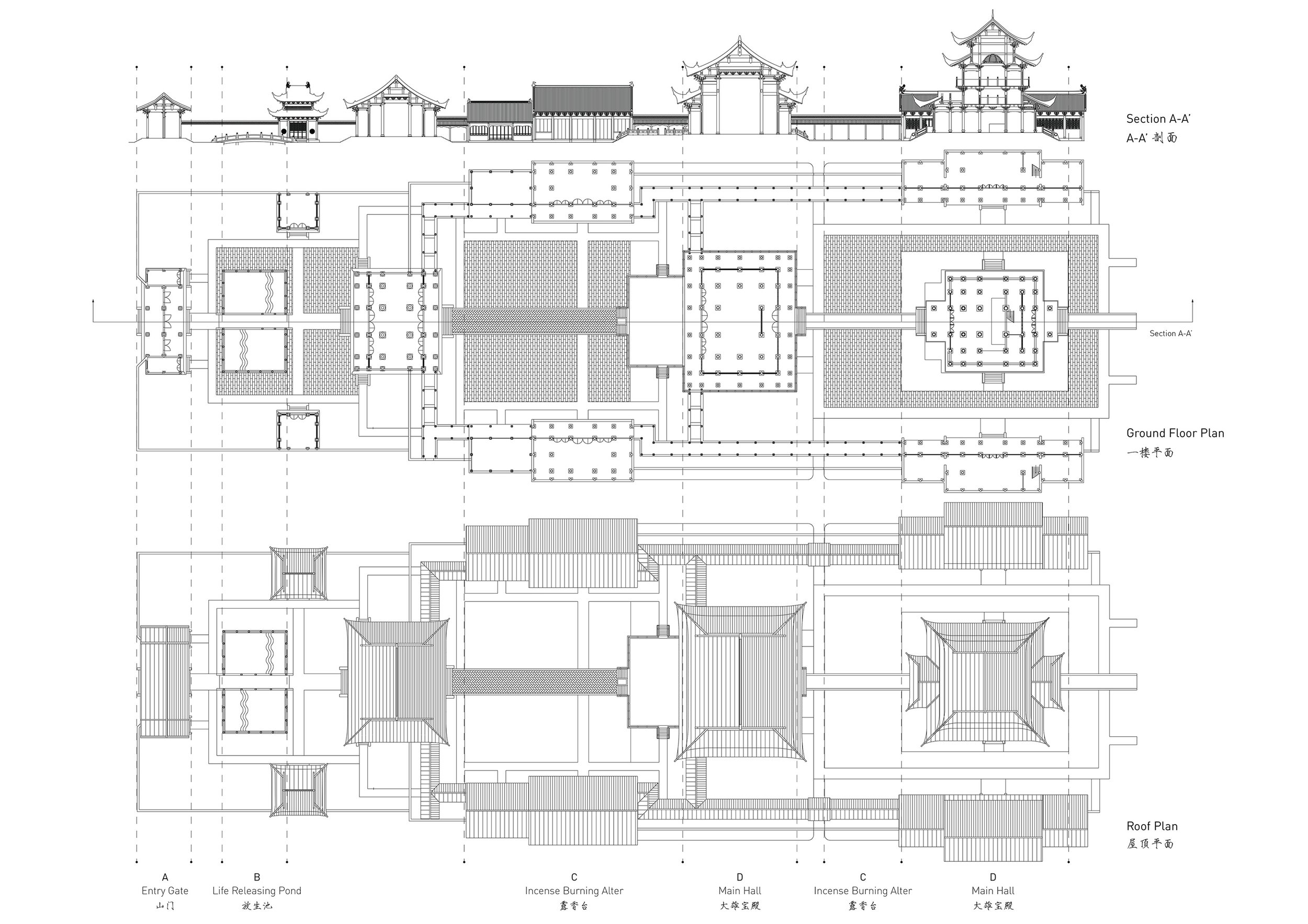
Adaptations of Worship by Michael Sha
Adaptations of Worship by Michael Sha
Adaptations of Worship by Michael Sha
Creative Response to Oppression by Tony Wang
Gentle Resistance by Christodoulos Evgeniou
Gentle Resistance by Christodoulos Evgeniou
Gentle Resistance by Christodoulos Evgeniou
Gentle Resistance by Christodoulos Evgeniou
Gentle Resistance by Christodoulos Evgeniou